みなさまこんにちは!
奈良市石木町で住宅の新築やリフォーム、
増改築をさせて頂いております、
㈱中内工務店です(^^)/
以前のブログでお伝えしていたモデルハウス計画。
たくさんの打合せと検討を重ね、このたび間取りが確定いたしました👏
今回は、その決定した間取りについて、詳しくご紹介します!
今回のモデルハウスは、実際の暮らしがリアルに想像できるよう、
サイズ感や動線、収納の取り方など、これから家づくりを考えられる方が
「これ、ちょうどいい」「真似したい」と感じていただけるような間取りを目指しました!


1F|家族が自然と集まるLDK中心の間取り
キッチンは対面式とし、
料理をしながらリビング・ダイニング全体を見渡せる配置に。
ダイニング横には造作ソファを設け、くつろぎと食事の距離が近い、心地よい空間構成になっています。
また、
・脱衣室兼ランドリールーム
・WIC
を設けることで家事動線が短く、日々の暮らしがスムーズになるよう工夫しています。
玄関には収納をしっかり確保し、パントリーも設置することで
生活感を抑えながらも使いやすい設計としました。
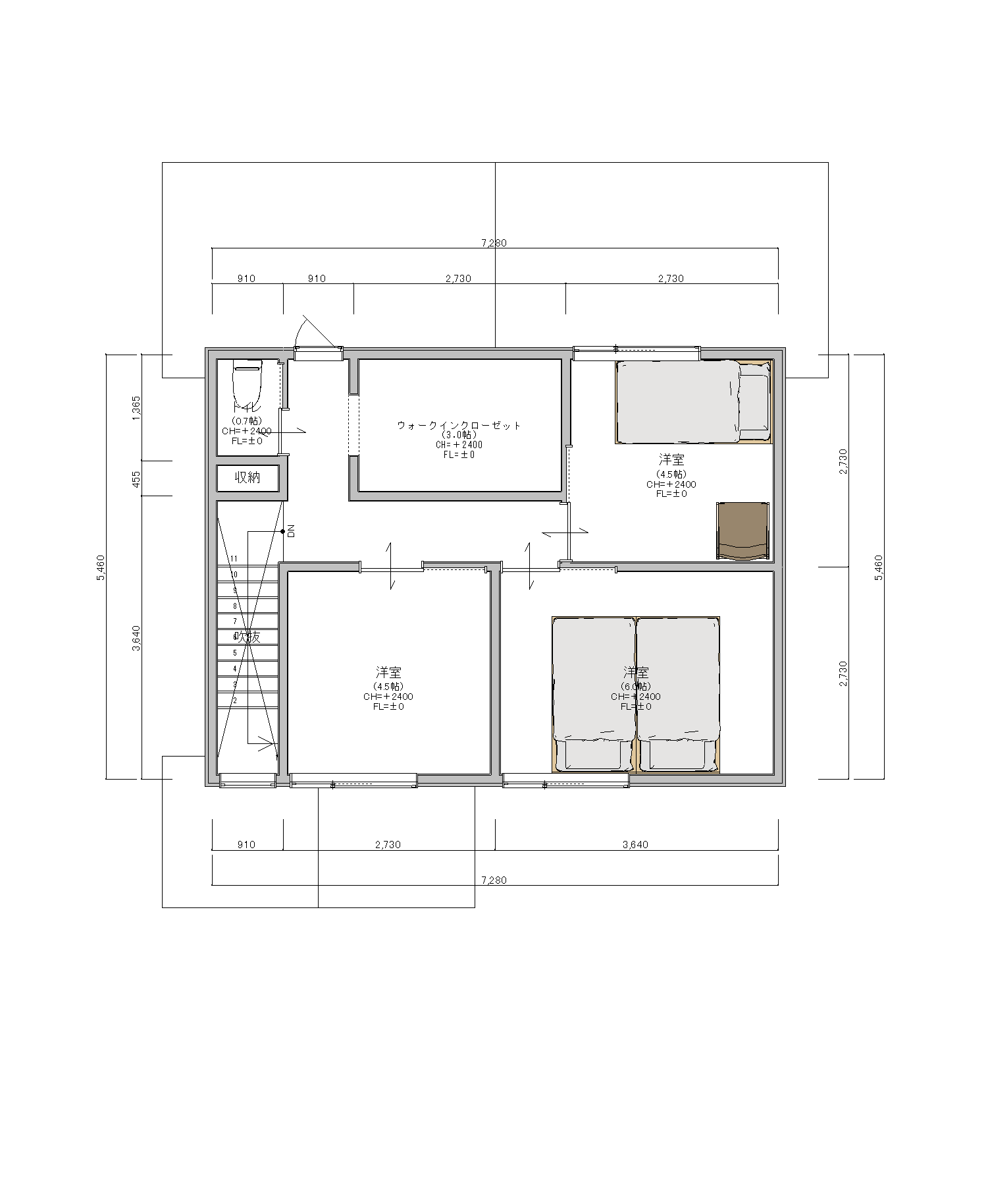
2F|家族それぞれの時間を大切にできる空間
・主寝室
・洋室2部屋
・ウォークインクローゼット
個室はコンパクトながらも、
収納や窓の配置を工夫することで、
広さ以上にゆとりを感じられる空間に。
廊下にはトイレを設け、
来客時にもプライベート空間を通らずに使える点もポイントです。
延床面積は約28.9坪と、決して大きすぎないサイズ感。
それでも、動線・収納・空間のつながりを丁寧に考えることで、
数字以上の広がりと住みやすさを感じられる住まいになっています🌿
これから工事が進み、
実際の空間として形になっていくのが私たちもとても楽しみです。
また進捗がありましたら、ブログでご紹介していきますので、
ぜひ楽しみにお待ちください😊
奈良市石木町で住宅の新築やリフォーム、
増改築をさせて頂いております、
㈱中内工務店でした。
***********************************************
家族が安全・健康・快適に暮らせる良い家を。
http://www.nakauchi-koumuten.com/
▲無料ガイドブックをプレゼント♪
すまい工房 ㈱中内工務店
***********************************************
お家づくりを考え始めた方へ…見学会や楽しいイベント情報などを定期的にお届けします!
見学会予約や家づくりに関するご相談なども、公式LINEのトークから個別に対応可能📨
是非ご登録下さい♪ ↓↓


2026年1月15日









LINEで相談






